Penthouse in Hamrun
Overview
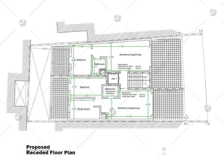
New on the market is this fourth floor penthouse with its own airspace being sold finished excluding doors and bathrooms. Layout consists of a spacious open plan kitchen/living/dining leading to a large terrace, three bedrooms main having en suite facilities, main bathroom, a laundry room and a back terrace. Freehold and served with a lift.
Details
-
Property ID:P000240974
-
Home Area:145 sqm
-
Beds:3
-
Price:€320,000
-
Property Status:




