Penthouse in Gozo Il-Qala
Overview
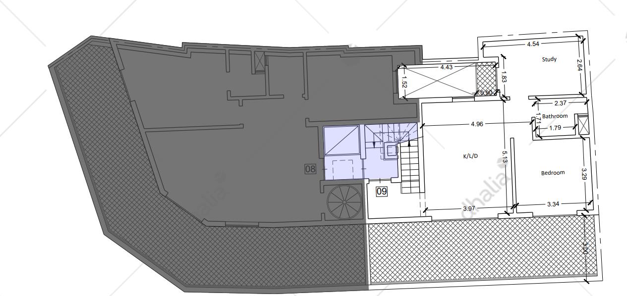
A new development located on the tranquil outskirts of Qala. This unique project beautifully blends modern comfort with traditional Maltese charm, preserving the character of the existing old building. The development features spacious, square layouts while enjoy a corner position that ensures an abundance of natural light. This unit comprising a two-bedroom, a main bathroom, a combined kitchen/dining/living room, a large corner terrace and a private swimming pool at roof level while enjoying amazing country views. It is ideal for first-time buyers seeking their perfect home, as well as investors looking for a property with lasting value.
Details
-
Property ID:P000253607
-
Home Area:95 sqm
-
Beds:2
-
Baths:1
-
Price:€292,000
-
Property Status:








