Flats in St Julians
Overview
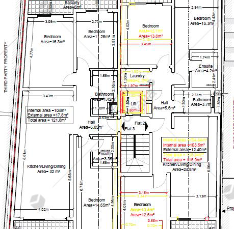
A new development of highly finished properties in a good location in St Julians, consisting of maisonettes, apartments and penthouses with one, two or three bedrooms, two bathrooms and good-sized yards/terraces. Finished excluding bathrooms and doors. Optional interconnecting garages are also available. Contact us now for plans and more info. Completion date 2027.
Details
-
Property ID:P000246288
-
Home Area:116 sqm
-
Beds:3
-
Price:€425,000
-
Property Status:




