Flats in St Julians
Overview
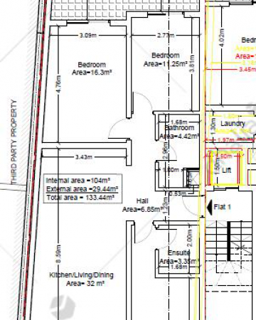
Located on the second floor, this stunning apartment in Portomaso offers breathtaking views of the marina. The property boasts a large open plan sitting and dining area that leads out to a 20 square metre terrace. It also includes a separate kitchen, two double bedrooms – the master with an en suite bathroom and walk-in wardrobe, and the second bedroom with its own en suite facilities and a guest toilet.
Details
-
Property ID:P000248629
-
Home Area:189 sqm
-
Beds:2
-
Price:€1,200,000
-
Property Status:









