Flats in Marsascala
Overview
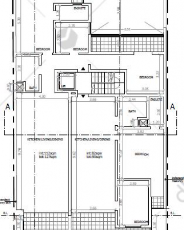
A Nice apartment on the fourth floor of a new block in Marsascala with a lovely Sea view. It consists of an open plan, bathroom, two bedrooms, a main with en-suite, a back balcony, and a front balcony. The apartment will be sold in shell form.
Details
-
Property ID:P000247892
-
Home Area:92 sqm
-
Beds:2
-
Price:€319,000
-
Property Status:




