Flats in Gozo Santa Lucia
Overview
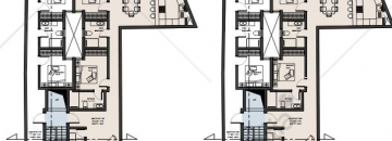
This new development is situated in the peaceful village of Santa Lucija. The unit comprises an open-plan kitchen/dining/living area leading to a good-sized terrace with space for a Jacuzzi, three bedrooms (one of which with ensuite), a main bathroom and a front balcony. It is currently on plan and will be sold in shell form. This property offers an excellent investment opportunity at a price to sell.
Details
-
Property ID:P000253494
-
Home Area:138 sqm
-
Beds:3
-
Price:€300,000
-
Property Status:




