Flats in Gozo Sannat
Overview
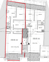
This squarish layout apartment is located in a nice area of Sannat. The layout features a larger than usual open-plan kitchen/living/dining room, three bedrooms (one of which with ensuite facility), a main bathroom, a box room and two good-sized balconies. This property is being offered fully furnished including all appliances. Must view!
Details
-
Property ID:P000245144
-
Home Area:135 sqm
-
Beds:3
-
Baths:1
-
Price:€286,000
-
Property Status:




