Flats in Gozo Sannat
Overview
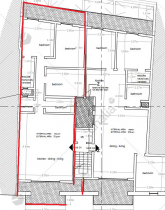
Ground floor apartment situated in the village of Sannat. The property consists of a combined kitchen/dining/living room, three bedrooms (one of which with ensuite facility), a main bathroom and a well-sized backyard. Apartment is brand new and modern.
Details
-
Property ID:P000245145
-
Home Area:100 sqm
-
Beds:3
-
Price:€800
-
Property Status:









